Trilocale in vendita

Roma, Via vitaliano brancati - Eur
€ 345.000
Prezzo aggiornato
3 locali 3 locali
88 Mq 88 Mq
1 bagno 1 bagno

Trilocale in vendita

Roma, Via vitaliano brancati - Eur

Descrizione annuncio

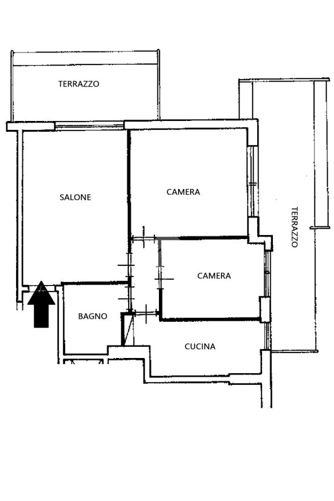
E. U. R. PAVESE – VIA VITALIANO BRANCATI
TRILOCALE – TERRAZZI VIVIBILI – POSTO AUTO
In Via Vitaliano Brancati all’interno di un elegante stabile in cortina dotato di servizio di portineria, proponiamo la vendita di un appartamento sito al secondo piano.

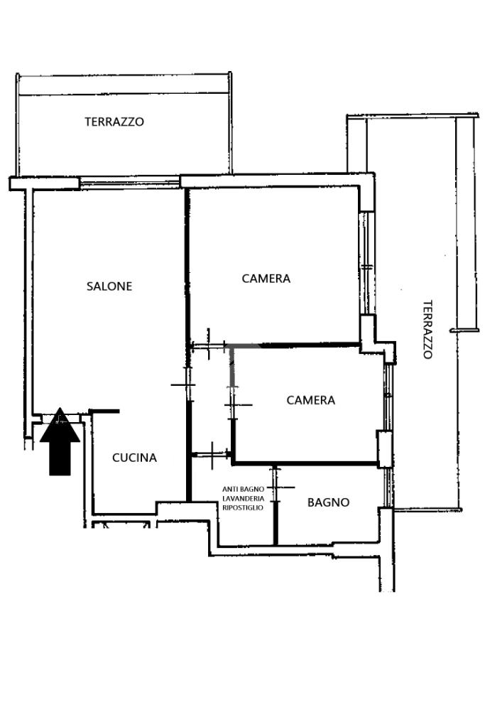
L'immobile che possiede una doppia esposizione angolare a SUD - OVEST, ricevendo luce per tutto l'arco della giornata, è così composto: ingresso, soggiorno con sfogo sul terrazzo abitabile, ampio bagno, cucina abitabile con sfogo sul secondo terrazzo abitabile della casa, camera matrimoniale con sfogo sullo stesso terrazzo della cucina, seconda camera singola ma capiente e a base quadrata.
Completano la proprietà una cantina ed un comodo posto auto.

L’appartamento possiede un solo bagno capiente senza finestra ma per conformazione planimetrica è facile crearne un altro finestrato senza pregiudicare la fruibilità della casa.

Affaccio silenzioso e riservato.
Sono stati deliberati e a stretto giro inizieranno i lavori di rifacimento di terrazzi, cornicioni e frontalini che rimangono a cura e spese dei proprietari.

Questo appartamento è la giusta soluzione per chi necessita di una casa dove vivere in serenità e riservatezza, senza però rinunciare a tutti i servizi di prima necessità raggiungibili a piedi.

L’appartamento è ottimo anche per chi volesse fare un investimento perché queste tipologie in zona si locano con facilità a prezzi molto elevati.

Mostra tutto

Nelle vicinanze

Trasporto pubblico Trasporto pubblico
EUR Fermi
EUR Fermi
1,4 Km
EUR Palasport
EUR Palasport
1,6 Km
stazione di Tor di Valle
stazione di Tor di Valle
2,7 Km
Pavese/Ungaretti
Pavese/Ungaretti
150 m
Pavese/Vittorini
Pavese/Vittorini
160 m
Ricariche auto elettriche Ricariche auto elettriche
Roma Ospedale S. Eugenio | EnelX
720 m
EnelX EVA+ Roma Nervi
910 m
Roma Il Fungo | EnelX
1,0 Km
Roma Sinigaglia | EnelX fast
1,2 Km
Roma Silone | EnelX
1,2 Km
Scuole Scuole
Liceo classico Francesco Vivona succursale
170 m
Scuole
830 m
Liceo Scientifico Statale Aristotele (succursale)
870 m
Scuola Media Statale Leonardo da Vinci
1,2 Km
Scuola Primaria "Via Lione"
1,3 Km
Farmacia Farmacia
Farmacia Comunale Fonte Ostiense
210 m
Parafarmacia È Qui
810 m
Farmacia Corsetti
1,3 Km
Farmacia
1,3 Km
Farmacia Vavalà
1,6 Km
Ospedali Ospedali
Sant'eugenio
640 m
Istituto San Gallicano
2,3 Km
Studio Odontoiatrico Dominici
2,3 Km
Istituti Fisioterapici Ospedalieri
2,3 Km
Supermercati Supermercati
Carrefour Express
240 m
Ipercoop
670 m
Supermercati
1,4 Km
Pam
1,4 Km
Coop Via Laurentina
1,5 Km
Negozi Negozi
OVS
340 m
Friend's Alimentari
1,7 Km
Brandy Melville
1,7 Km
Subdued
1,8 Km
Sweet Baby Outlet
1,8 Km
Bar Bar
La tazzina stregata
110 m
Il tempio del caffè
200 m
E-42 Café
710 m
Bar
1,2 Km
Federici Bruno
1,4 Km
Ristoranti Ristoranti
Wok Restaurant
230 m
LOFT Gastronomia E Grill
340 m
Specialità di Hong Kong
340 m
Macinanti La Pizzeria
350 m
Il Fontanone
360 m
Mostra tutto

Caratteristiche

Rif.:
61198354
Piano:
2 con ascensore (Piano medio)
Posti auto:
1
Terrazzi:
1
Camere da letto:
2
Condizionamento:
Autonomo
Mostra tutto
Prezzo Prezzo
€ 345.000
Rata mutuo Rata mutuo
€ 1.639 / mese
Proponi il tuo prezzoProponi il tuo prezzo

Classe Energetica

G
G
G
G
G
G
G
G
G
EP globale non rinnovabile:
175.00 kW h/m² anno
EP globale rinnovabile:
175.00 kW h/m² anno
EP invernale del fabbricato:
EP estiva del fabbricato:
Anno di costruzione:
1980
Riscaldamento:
Autonomo
Tipo impianto:
A radiatori
Tipo alimentazione:
Metano

Prezzo ridotto di €1 (6%%)

Ti interessa visionare l'immobile?

Fissa un appuntamento  Fissa un appuntamento

Richiedi informazioni

Clicca su Leggi per aprire l'informativa
* Questi campi sono obbligatori

Calcola il tuo mutuo

Semplice e senza impegno
Anticipo

( % )
Mutuo

( % )

pochi semplici passi

inserisci i tuoi dati
Questionario completato
Grazie per aver richiesto un appuntamento senza impegno con un nostro Consulente del Credito e Assicurativo.

Hai inserito correttamente tutti i dati necessari e a breve riceverai una e-mail con un link da convalidare per inviare i tuoi dati.
Affiliato
Studio Eur 1 Srl
Viale dell'Aeronautica, 117 00144 Roma (RM)

Il nostro staff


  • Gianluca Morelli
    Affiliato

  • Stefano Morellini
    Responsabile

  • Claudia Lo Conte
    Coordinatrice

  • Francesca Marzano
    Collaboratrice
Viale dell'Aeronautica, 117 00144 Roma (RM)
Zona: Eur-Pavese-Dalmata
Mostra su mappa
Orari: dal lunedì al venerdì 09:00/13:00-15:30/20:00; sabato 09:00/13:00- 15:30/19:00; domenica su appuntamento dalle 10:00 alle 12:30.
Affiliato
Studio Eur 1 Srl
Viale dell'Aeronautica, 117 00144 Roma (RM)

2026 Tecnocasa Franchising S.p.A. - P. IVA 08365160152 - Via Monte Bianco 60/A 20089 Rozzano (MI). Ogni agenzia ha un proprio titolare ed è autonoma. Privacy policy | Policy utilizzo | Cookie policy