Quadrilocale in vendita

Roma, Viale cesare pavese - Pavese
€ 469.000
4 locali 4 locali
145 Mq 145 Mq
2 bagni 2 bagni

Quadrilocale in vendita

Roma, Viale cesare pavese - Pavese

Descrizione annuncio

E. U. R. VIALE CESARE PAVESE

PIANO ALTO – QUADRILOCALE – TERRAZZO VIVIBILE

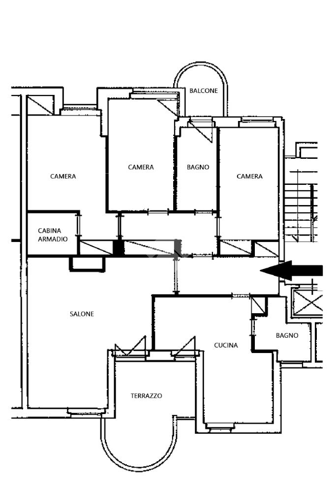
In viale Cesare Pavese proponiamo la vendita di un appartamento di ampia metratura, sito al quarto e penultimo piano di una signorile palazzina recentemente ristrutturata.

La zona giorno si compone di un ampio ingresso che consente l’accesso ad un salone doppio e ad una cucina abitabile, sia dalla cucina che dal salone si accede ad un grande terrazzo abitabile. Nella zona giorno, adiacente alla cucina, vi è il primo dei due bagni finestrati.

La zona notte si compone di tre camere da letto: una matrimoniale con comoda cabina armadio e due singole ampie di cui una con balconcino privato. Nella zona notte vi è anche un secondo bagno finestrato.

Degni di nota sono anche i numerosi armadi a muro che consentono di sfruttare al meglio gli ampi spazi della casa.


Completano la proprietà una cantina ed un comodo posto auto coperto collegati direttamente tramite ascensore.


L’appartamento possiede una duplice esposizione.


Riscaldamento autonomo.

Questo appartamento è la giusta soluzione per una famiglia che cerca una casa di ampia metratura ad un piano alto o per un investitore che vuole metterla a rendita.
La soluzione, inoltre, sita in un contesto signorile e riservato si trova ad un passo da tutti i servizi di prima necessità come scuole, supermercati, centro sportivo e ha una posizione strategica vista la vicinanza a tutte le maggiori arterie stradali di Roma Sud.

Mostra tutto

Nelle vicinanze

Trasporto pubblico Trasporto pubblico
Laurentina
Laurentina
1,1 Km
EUR Fermi
EUR Fermi
1,4 Km
Pavese/Thovez
Pavese/Thovez
20 m
Pavese/Scotellaro
Pavese/Scotellaro
200 m
Ricariche auto elettriche Ricariche auto elettriche
Roma Sinigaglia | EnelX fast
500 m
Roma Silone | EnelX
560 m
Roma Ospedale S. Eugenio | EnelX
800 m
Eneldrive Douhet
1,0 Km
Metro Laurentina | EnelX
1,2 Km
Scuole Scuole
Liceo Scientifico Statale Aristotele (succursale)
140 m
Scuole
180 m
Liceo classico Francesco Vivona succursale
960 m
Scuola dell'infanzia Padre Lais + Istituto comprensivo "G. Montezemolo"
1,5 Km
Highlands Institute
1,6 Km
Farmacia Farmacia
Farmacia Comunale Fonte Ostiense
610 m
Farmacia Vavalà
900 m
Farmacia Corsetti
1,1 Km
Farmacia
1,9 Km
Farmacia Imbesi
2,0 Km
Ospedali Ospedali
Sant'eugenio
690 m
Istituto San Gallicano
3,0 Km
Supermercati Supermercati
Carrefour Express
580 m
Iper Carni
860 m
Coop Via Laurentina
900 m
PAM
950 m
Carrefour
1,3 Km
Negozi Negozi
OVS
1,1 Km
Friend's Alimentari
1,2 Km
Brandy Melville
1,9 Km
Cantiere
2,1 Km
Sweet Baby Outlet
2,1 Km
Bar Bar
Il tempio del caffè
620 m
La tazzina stregata
780 m
EXE ROMA
1,9 Km
Federici Bruno
1,9 Km
Tiki Bar
1,9 Km
Ristoranti Ristoranti
Ristoranti
470 m
Wok Restaurant
580 m
Specialità di Hong Kong
670 m
Macinanti La Pizzeria
680 m
Pizzeria Dolce Grano
710 m
Mostra tutto

Caratteristiche

Rif.:
61197635
Piano:
4 con ascensore (Piano alto)
Posti auto:
1
Balconi:
2
Camere da letto:
3
Condizionamento:
Autonomo
Mostra tutto
Prezzo Prezzo
€ 469.000
Rata mutuo Rata mutuo
€ 2.211 / mese
Proponi il tuo prezzoProponi il tuo prezzo

Classe Energetica

G
G
G
G
G
G
G
G
G
EP globale non rinnovabile:
175.00 kW h/m² anno
EP globale rinnovabile:
175.00 kW h/m² anno
EP invernale del fabbricato:
EP estiva del fabbricato:
Anno di costruzione:
1980
Riscaldamento:
Autonomo
Tipo impianto:
A radiatori
Tipo alimentazione:
Metano

Ti interessa visionare l'immobile?

Fissa un appuntamento  Fissa un appuntamento

Richiedi informazioni

Clicca su Leggi per aprire l'informativa
* Questi campi sono obbligatori

Calcola il tuo mutuo

Semplice e senza impegno
Anticipo

( % )
Mutuo

( % )

pochi semplici passi

inserisci i tuoi dati
Questionario completato
Grazie per aver richiesto un appuntamento senza impegno con un nostro Consulente del Credito e Assicurativo.

Hai inserito correttamente tutti i dati necessari e a breve riceverai una e-mail con un link da convalidare per inviare i tuoi dati.
Affiliato
Studio Eur 1 Srl
Viale dell'Aeronautica, 117 00144 Roma (RM)

Il nostro staff


  • Gianluca Morelli
    Affiliato

  • Stefano Morellini
    Responsabile

  • Claudia Lo Conte
    Coordinatrice

  • Francesca Marzano
    Collaboratrice
Viale dell'Aeronautica, 117 00144 Roma (RM)
Zona: Eur-Pavese-Dalmata
Mostra su mappa
Orari: dal lunedì al venerdì 09:00/13:00-15:30/20:00; sabato 09:00/13:00- 15:30/19:00; domenica su appuntamento dalle 10:00 alle 12:30.
Affiliato
Studio Eur 1 Srl
Viale dell'Aeronautica, 117 00144 Roma (RM)

2026 Tecnocasa Franchising S.p.A. - P. IVA 08365160152 - Via Monte Bianco 60/A 20089 Rozzano (MI). Ogni agenzia ha un proprio titolare ed è autonoma. Privacy policy | Policy utilizzo | Cookie policy