5 locali in vendita

Roma, Viale dei Primati Sportivi - Eur
€ 916.000
5 locali 5 locali
210 Mq 210 Mq
2 bagni 2 bagni

5 locali in vendita

Roma, Viale dei Primati Sportivi - Eur

Descrizione annuncio

E. U. R. CENTRO – VIALE DEI PRIMATI SPORTIVI

APPARTAMENTO SIGNORILE CON BOX AUTO

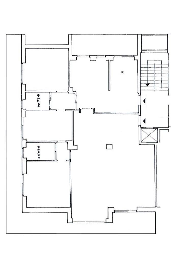
All’interno del Pentagono dell’ E. U. in una delle vie più riservate e silenziose del quartiere, precisamente in Viale dei Primati Sportivi, proponiamo in vendita esclusiva un ampio appartamento sito al secondo piano che si sviluppa su una base quadrata con triplice esposizione (EST-SUD-OVEST).

Completa la proprietà un box auto di 22 mq compreso nel prezzo.

Il garage in questione è sito all’interno della stessa palazzina, collegato tramite ascensore e dotato di spazi adiacenti che ne consentono l’utilizzo con manovre estremamente semplici.

La soluzione si trova all’interno di un’elegante palazzina in cortina di soli quattro piani che ha ricevuto una recente ristrutturazione per le facciate e per il lastrico solare.

Lo stabile in questione non ha mai avuto criticità a livello statico.

L’appartamento è composto da due ingressi, entrambi con porta blindata. L’ingresso principale consente di accedere ad un salone di rappresentanza che misura circa 70 mq, si sviluppa su base rettangolare ed è dotato di porte finestre che consentono l’accesso al terrazzo abitabile che lo costeggia (tra i tanti aneddoti sulla casa si racconta che questo salone per le sue generosissime dimensioni abbia ospitato cene per oltre 50 persone e sia stato anche teatro di partite di pallavolo).

Dall’ingresso secondario si accede alla cucina a vista con un ampio tinello adiacente, anche questa parte della casa è dotata di porte finestre che consentono l’utilizzo di un altro terrazzo abitabile.

Sia dal salone che dalla zona di servizio vi è la possibilità di accedere alla zona notte, che rimane separata dal resto della casa e che vanta tre camere da letto matrimoniali intramezzate da due grandi bagni finestrati con antistante disimpegno.

Tutte le stanze hanno accesso al terrazzo ad elle che costeggia il salone e si sviluppa anche per tutto il perimetro della zona notte per più di 30 m.

Degni di nota sono gli ampi armadi a muro, presenti nel salone e nella zona di servizio, e l’elegante e confortevole parquet presente nel salone e nelle camere da letto.

L’appartamento è molto silenzioso e riservato, ciò è garantito dal fatto che la strada è tenuta a distanza dalla piazzetta adiacente, nella quale si può sempre parcheggiare facilmente.

L’appartamento è particolarmente luminoso durante tutto l’arco della giornata godendo di una triplice esposizione (EST – SUD - OVEST) e di affacci liberi verso l’ex Velodromo. L'immobile non può essere frazionato perchè vietato da regolamento condominiale.

La collocazione della palazzina rende l'accesso alla casa molto sicuro sia il giorno che la notte e le grate di sicurezza garantiscono la protezione dell’appartamento.

La posizione strategica rende l’immobile estremamente confortevole per una famiglia che desidera vivere in un contesto silenzioso e riservato senza rinunciare a tutti i principali servizi come scuole, supermercati, farmacie, trasporto pubblico ecc. che sono davvero ad un passo.

Mostra tutto

Nelle vicinanze

Trasporto pubblico Trasporto pubblico
EUR Palasport
EUR Palasport
910 m
EUR Fermi
EUR Fermi
1,2 Km
stazione di Tor di Valle
stazione di Tor di Valle
1,9 Km
Trasporto pubblico
2,2 Km
Primati Sportivi/Ciclismo
Primati Sportivi/Ciclismo
100 m
Ricariche auto elettriche Ricariche auto elettriche
Roma Oceano Pacifico | EnelX
190 m
Roma Il Fungo | EnelX
730 m
Enel Drive Europa Ovest
740 m
EnelX EVA+ Largo Apollinaire
740 m
Roma America | EnelX
790 m
Scuole Scuole
Liceo Classico Massimiliano Massimo
280 m
Scuola Materna "Mandorlo Incantato"
330 m
Scuola Primaria "Via Lione"
720 m
Scuola Media Statale Leonardo da Vinci
730 m
Istituto comprensivo Leonardo Da Vinci (succursale)
910 m
Farmacia Farmacia
Farmacia
340 m
Farmacia Imbesi
800 m
Farmacia Corsetti
1,6 Km
Farmacia Torrino
1,8 Km
Farmacia Comunale Fonte Ostiense
1,8 Km
Ospedali Ospedali
Sant'eugenio
1,5 Km
Ospedale Israelitico
2,4 Km
Istituto San Gallicano
2,9 Km
Supermercati Supermercati
Supermercati
950 m
Simply Market
980 m
Super Elite
1,1 Km
Ipercoop
1,4 Km
Carrefour Express
1,8 Km
Negozi Negozi
Sweet Baby Outlet
640 m
Fellini
720 m
Brandy Melville
750 m
Cantiere
780 m
OVS
1,4 Km
Bar Bar
Federici Bruno
330 m
Bar
440 m
Tiki Bar
770 m
Columbus
1,5 Km
EXE ROMA
1,5 Km
Ristoranti Ristoranti
Daruma
620 m
Piano Zero - Pizzeria Bistrot
710 m
Il Gianfornaio
710 m
Quattordicesimo Piano - Il Fungo
720 m
Osteria Margherita
730 m
Mostra tutto

Caratteristiche

Rif.:
61189550
Piano:
2 di 4 con ascensore (Piano alto)
Box:
1
Balconi:
1
Terrazzi:
1
Camere da letto:
3
Mostra tutto
Prezzo Prezzo
€ 916.000
Rata mutuo Rata mutuo
€ 4.318 / mese
Proponi il tuo prezzoProponi il tuo prezzo

Classe Energetica

G
G
G
G
G
G
G
G
G
EP globale non rinnovabile:
175.00 kW h/m² anno
EP globale rinnovabile:
175.00 kW h/m² anno
EP invernale del fabbricato:
EP estiva del fabbricato:
Anno di costruzione:
1960
Riscaldamento:
Centralizzato
Tipo impianto:
A radiatori
Tipo alimentazione:
Metano

Ti interessa visionare l'immobile?

Fissa un appuntamento  Fissa un appuntamento

Richiedi informazioni

Clicca su Leggi per aprire l'informativa
* Questi campi sono obbligatori

Calcola il tuo mutuo

Semplice e senza impegno
Anticipo

( % )
Mutuo

( % )

pochi semplici passi

inserisci i tuoi dati
Questionario completato
Grazie per aver richiesto un appuntamento senza impegno con un nostro Consulente del Credito e Assicurativo.

Hai inserito correttamente tutti i dati necessari e a breve riceverai una e-mail con un link da convalidare per inviare i tuoi dati.
Affiliato
Studio Eur 1 Srl
Viale dell'Aeronautica, 117 00144 Roma (RM)

Il nostro staff


  • Gianluca Morelli
    Affiliato

  • Stefano Morellini
    Responsabile

  • Claudia Lo Conte
    Coordinatrice

  • Francesca Marzano
    Collaboratrice
Viale dell'Aeronautica, 117 00144 Roma (RM)
Zona: Eur-Pavese-Dalmata
Mostra su mappa
Orari: dal lunedì al venerdì 09:00/13:00-15:30/20:00; sabato 09:00/13:00- 15:30/19:00; domenica su appuntamento dalle 10:00 alle 12:30.
Affiliato
Studio Eur 1 Srl
Viale dell'Aeronautica, 117 00144 Roma (RM)

2026 Tecnocasa Franchising S.p.A. - P. IVA 08365160152 - Via Monte Bianco 60/A 20089 Rozzano (MI). Ogni agenzia ha un proprio titolare ed è autonoma. Privacy policy | Policy utilizzo | Cookie policy