Trilocale in vendita

Roma, Via canzone del piave - Eur
€ 395.000
3 locali 3 locali
140 Mq 140 Mq
2 bagni 2 bagni

Trilocale in vendita

Roma, Via canzone del piave - Eur

Descrizione annuncio

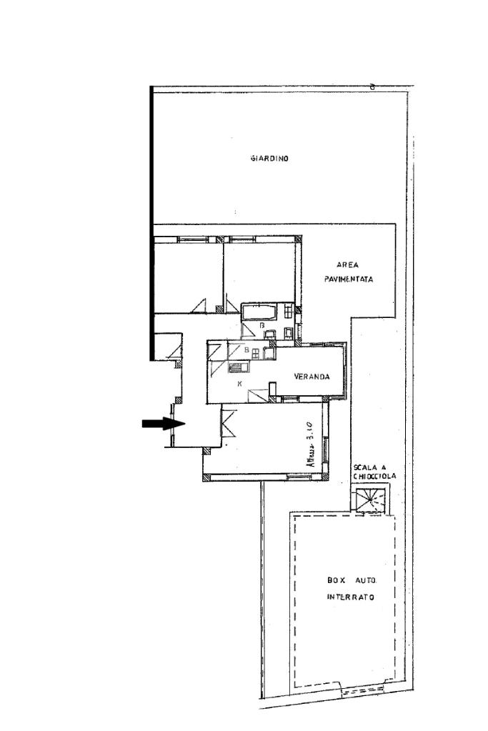
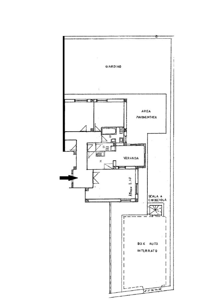
. R. – VIA CANZONE DEL PIAVE

TRILOCALE LUMINOSO E RISERVATO CON AMPIO GIARDINO PRIVATO

Nel quartiere E. U. precisamente in Via Canzone del Piave, proponiamo in vendita esclusiva un appartamento sito al primo piano con giardino privato di circa 250mq al quale hanno accesso tutti i locali della casa.

La soluzione, che si trova all’interno di un’elegante palazzina di soli cinque piani, è così composta: ampio ingresso, salone, cucina abitabile, due camere da letto matrimoniali, veranda regolarmente condonata, doppi servizi di cui uno finestrato. Internamente l’appartamento ha una superficie utile netta di 100 mq.

Incluso nel prezzo vi è una cantina asciutta e comoda di 9 mq.

Vi è anche la possibilità di acquistare con una trattativa separata un box auto triplo di 52 mq netti dotato di passo carrabile e collegato internamente con il giardino della casa.

Degni di nota sono anche i due appartamenti condominiali che, essendo regolarmente locati, offrono una rendita tale da poter azzerare totalmente i costi condominiali dell’appartamento.

Riscaldamento autonomo.

L’appartamento è molto silenzioso e riservato ciò è garantito dal piano che lo eleva rispetto alla strada e dai tre affacci, due interni ed il terzo comunque rientrato e rialzato rispetto a Via Canzone del Piave.

L’appartamento è particolarmente luminoso durante tutto l’arco della giornata godendo di una triplice esposizione (SUD – EST -OVEST) per la maggior parte a SUD.

La collocazione della palazzina rende l'accesso alla casa molto sicuro sia il giorno che la notte e le grate di sicurezza garantiscono la protezione dell’appartamento.

La posizione strategica dell'immobile, la vicinanza alla fermata metro, al centro commerciale e a tutti i principali servizi lo rendono estremamente confortevole per un uso residenziale.

Mostra tutto

Nelle vicinanze

Trasporto pubblico Trasporto pubblico
Laurentina
Laurentina
790 m
EUR Fermi
EUR Fermi
1,5 Km
Canzone del Piave
Canzone del Piave
20 m
Divisione Torino/Laurana
Divisione Torino/Laurana
100 m
Ricariche auto elettriche Ricariche auto elettriche
Roma Sinigaglia | EnelX fast
300 m
Roma Silone | EnelX
820 m
Metro Laurentina | EnelX
820 m
Eneldrive Douhet
870 m
Roma Martini | Enel X
1,0 Km
Scuole Scuole
Scuole
350 m
Liceo Scientifico Statale Aristotele (succursale)
640 m
Istituto artistico Caravaggio
880 m
Scuola dell'infanzia Padre Lais + Istituto comprensivo "G. Montezemolo"
950 m
Highlands Institute
1,3 Km
Farmacia Farmacia
Farmacia Vavalà
900 m
Farmacia Corsetti
1,1 Km
Farmacia Comunale Fonte Ostiense
1,3 Km
Farmacia Imbesi
2,2 Km
Farmacia
2,3 Km
Ospedali Ospedali
Sant'eugenio
1,1 Km
Supermercati Supermercati
PAM
480 m
Iper Carni
870 m
Carrefour
1,0 Km
Pam Panorama
1,1 Km
Coop Via Laurentina
1,2 Km
Negozi Negozi
Friend's Alimentari
840 m
OVS
1,8 Km
Brandy Melville
2,1 Km
Cantiere
2,2 Km
Sweet Baby Outlet
2,3 Km
Bar Bar
Il tempio del caffè
1,3 Km
La tazzina stregata
1,5 Km
EXE ROMA
1,8 Km
Columbus
1,9 Km
Tiki Bar
2,1 Km
Ristoranti Ristoranti
Ristoranti
370 m
Pizza Roma
530 m
Girasole
790 m
Le Vele
800 m
Pizzeria Dolce Grano
1,1 Km
Mostra tutto

Caratteristiche

Rif.:
61180508
Piano:
1 con ascensore (Piano basso)
Terrazzi:
1
Camere da letto:
2
Arredamento:
Assente
Condizionamento:
Autonomo
Mostra tutto
Prezzo Prezzo
€ 395.000
Rata mutuo Rata mutuo
€ 1.862 / mese
Proponi il tuo prezzoProponi il tuo prezzo

Classe Energetica

G
G
G
G
G
G
G
G
G
EP globale non rinnovabile:
175.00 kW h/m² anno
EP globale rinnovabile:
175.00 kW h/m² anno
EP invernale del fabbricato:
EP estiva del fabbricato:
Riscaldamento:
Autonomo
Tipo impianto:
A radiatori
Tipo alimentazione:
Metano

Ti interessa visionare l'immobile?

Fissa un appuntamento  Fissa un appuntamento

Richiedi informazioni

Clicca su Leggi per aprire l'informativa
* Questi campi sono obbligatori

Calcola il tuo mutuo

Semplice e senza impegno
Anticipo

( % )
Mutuo

( % )

pochi semplici passi

inserisci i tuoi dati
Questionario completato
Grazie per aver richiesto un appuntamento senza impegno con un nostro Consulente del Credito e Assicurativo.

Hai inserito correttamente tutti i dati necessari e a breve riceverai una e-mail con un link da convalidare per inviare i tuoi dati.
Affiliato
Studio Eur 1 Srl
Viale dell'Aeronautica, 117 00144 Roma (RM)

Il nostro staff


  • Gianluca Morelli
    Affiliato

  • Stefano Morellini
    Responsabile

  • Claudia Lo Conte
    Coordinatrice

  • Francesca Marzano
    Collaboratrice
Viale dell'Aeronautica, 117 00144 Roma (RM)
Zona: Eur-Pavese-Dalmata
Mostra su mappa
Orari: dal lunedì al venerdì 09:00/13:00-15:30/20:00; sabato 09:00/13:00- 15:30/19:00; domenica su appuntamento dalle 10:00 alle 12:30.
Affiliato
Studio Eur 1 Srl
Viale dell'Aeronautica, 117 00144 Roma (RM)

2026 Tecnocasa Franchising S.p.A. - P. IVA 08365160152 - Via Monte Bianco 60/A 20089 Rozzano (MI). Ogni agenzia ha un proprio titolare ed è autonoma. Privacy policy | Policy utilizzo | Cookie policy