5 locali in vendita

Roma, Via canzone del piave - Dalmata
€ 599.000
5 locali 5 locali
200 Mq 200 Mq
2 bagni 2 bagni

5 locali in vendita

Roma, Via canzone del piave - Dalmata

Descrizione annuncio

E. U. R. – VIA CANZONE DEL PIAVE

AMPIO QUADRILOCALE – BOX AUTO TRIPLO – GIARDINO PRIVATO

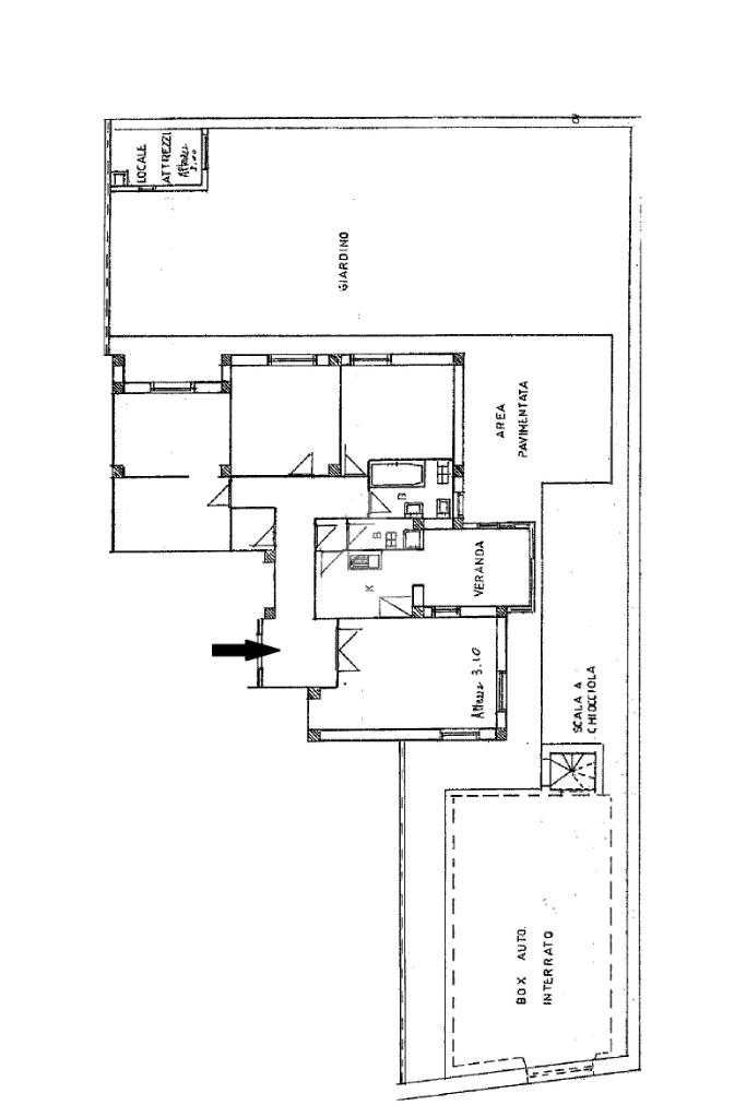
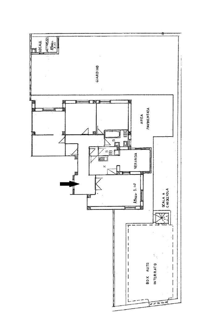
Nel quartiere E. U. precisamente in Via Canzone del Piave, proponiamo in vendita esclusiva un appartamento sito al primo piano con box auto di 52mq utili interni e giardino privato di circa 300mq al quale hanno accesso tutti i locali della casa.

La soluzione, che si trova all’interno di un’elegante palazzina di soli cinque piani, è così composta: ampio ingresso, salone, cucina abitabile, tre camere da letto matrimoniali, veranda regolarmente condonata, doppi servizi di cui uno finestrato. Gli infissi sono stati ristrutturati e si presentano in legno sia all'interno che all'esterno e dispongono di doppio vetro taglio termico di ultima generazione. Internamente l’appartamento ha una superficie utile netta di 130mq.

Completano la proprietà una cantina asciutta e comoda di 9mq, un box auto triplo di 52mq dotato di passo carrabile e collegato internamente con il giardino della casa e una piccola capannina per gli attrezzi di 7mq, totalmente in muratura e regolarmente condonata, sita ad un angolo interno del giardino.

Degni di nota sono anche i due appartamenti condominiali che, essendo regolarmente locati, offrono una rendita tale da poter azzerare totalmente i costi condominiali dell’appartamento.

Riscaldamento autonomo.

L’appartamento è molto silenzioso e riservato ciò è garantito dal piano che lo eleva rispetto alla strada e dai tre affacci, due interni ed il terzo comunque rientrato rispetto a Via Canzone del Piave.

L’appartamento è particolarmente luminoso durante tutto l’arco della giornata godendo di una triplice esposizione (SUD – EST -OVEST) per la maggior parte a SUD.

La collocazione della palazzina rende l'accesso alla casa molto sicuro sia il giorno che la notte e le grate di sicurezza garantiscono la protezione dell’appartamento.

La posizione strategica dell'immobile, la vicinanza alla fermata metro, al centro commerciale e a tutti i principali servizi lo rendono estremamente confortevole per un uso residenziale.

Mostra tutto

Nelle vicinanze

Trasporto pubblico Trasporto pubblico
Laurentina
Laurentina
790 m
EUR Fermi
EUR Fermi
1,5 Km
Canzone del Piave
Canzone del Piave
20 m
Divisione Torino/Laurana
Divisione Torino/Laurana
100 m
Ricariche auto elettriche Ricariche auto elettriche
Roma Sinigaglia | EnelX fast
300 m
Roma Silone | EnelX
820 m
Metro Laurentina | EnelX
820 m
Eneldrive Douhet
870 m
Roma Martini | Enel X
1,0 Km
Scuole Scuole
Scuole
350 m
Liceo Scientifico Statale Aristotele (succursale)
640 m
Istituto artistico Caravaggio
880 m
Scuola dell'infanzia Padre Lais + Istituto comprensivo "G. Montezemolo"
950 m
Highlands Institute
1,3 Km
Farmacia Farmacia
Farmacia Vavalà
900 m
Farmacia Corsetti
1,1 Km
Farmacia Comunale Fonte Ostiense
1,3 Km
Farmacia Imbesi
2,2 Km
Farmacia
2,3 Km
Ospedali Ospedali
Sant'eugenio
1,1 Km
Supermercati Supermercati
PAM
480 m
Iper Carni
870 m
Carrefour
1,0 Km
Pam Panorama
1,1 Km
Coop Via Laurentina
1,2 Km
Negozi Negozi
Friend's Alimentari
840 m
OVS
1,8 Km
Brandy Melville
2,1 Km
Cantiere
2,2 Km
Sweet Baby Outlet
2,3 Km
Bar Bar
Il tempio del caffè
1,3 Km
La tazzina stregata
1,5 Km
EXE ROMA
1,8 Km
Columbus
1,9 Km
Tiki Bar
2,1 Km
Ristoranti Ristoranti
Ristoranti
370 m
Pizza Roma
530 m
Girasole
790 m
Le Vele
800 m
Pizzeria Dolce Grano
1,1 Km
Mostra tutto

Caratteristiche

Rif.:
61153586
Piano:
1 di 5 con ascensore (Piano terra con giardino)
Box:
3
Camere da letto:
4
Arredamento:
Assente
Condizionamento:
Autonomo
Mostra tutto
Prezzo Prezzo
€ 599.000
Rata mutuo Rata mutuo
€ 2.824 / mese
Spese annue Spese annue
€ 0
Proponi il tuo prezzoProponi il tuo prezzo

Classe Energetica

G
G
G
G
G
G
G
G
G
EP globale non rinnovabile:
175.00 kW h/m² anno
EP globale rinnovabile:
175.00 kW h/m² anno
EP invernale del fabbricato:
EP estiva del fabbricato:
Anno di costruzione:
1970
Riscaldamento:
Autonomo
Tipo impianto:
A radiatori
Tipo alimentazione:
Metano

Ti interessa visionare l'immobile?

Fissa un appuntamento  Fissa un appuntamento

Richiedi informazioni

Clicca su Leggi per aprire l'informativa
* Questi campi sono obbligatori

Calcola il tuo mutuo

Semplice e senza impegno
Anticipo

( % )
Mutuo

( % )

pochi semplici passi

inserisci i tuoi dati
Questionario completato
Grazie per aver richiesto un appuntamento senza impegno con un nostro Consulente del Credito e Assicurativo.

Hai inserito correttamente tutti i dati necessari e a breve riceverai una e-mail con un link da convalidare per inviare i tuoi dati.
Affiliato
Studio Eur 1 Srl
Viale dell'Aeronautica, 117 00144 Roma (RM)

Il nostro staff


  • Gianluca Morelli
    Affiliato

  • Stefano Morellini
    Responsabile

  • Claudia Lo Conte
    Coordinatrice

  • Francesca Marzano
    Collaboratrice
Viale dell'Aeronautica, 117 00144 Roma (RM)
Zona: Eur-Pavese-Dalmata
Mostra su mappa
Orari: dal lunedì al venerdì 09:00/13:00-15:30/20:00; sabato 09:00/13:00- 15:30/19:00; domenica su appuntamento dalle 10:00 alle 12:30.
Affiliato
Studio Eur 1 Srl
Viale dell'Aeronautica, 117 00144 Roma (RM)

2026 Tecnocasa Franchising S.p.A. - P. IVA 08365160152 - Via Monte Bianco 60/A 20089 Rozzano (MI). Ogni agenzia ha un proprio titolare ed è autonoma. Privacy policy | Policy utilizzo | Cookie policy