Quadrilocale in vendita

Roma, Viale Cesare Pavese - Pavese
€ 499.000
4 locali 4 locali
145 Mq 145 Mq
2 bagni 2 bagni

Quadrilocale in vendita

Roma, Viale Cesare Pavese - Pavese

Descrizione annuncio

. ADIACENZE VIALE UMANESIMO
QUADRILOCALE RISTRUTTURATO – TERRAZZI VIVIBILI – POSTO AUTO

Nel quartiere E. U. R. adiacente a Viale Umanesimo e precisamente in Viale Cesare Pavese, proponiamo in vendita esclusiva un appartamento finemente ristrutturato.

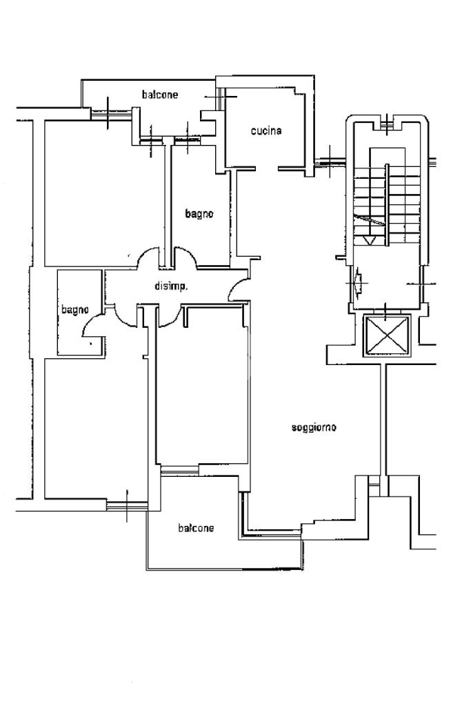
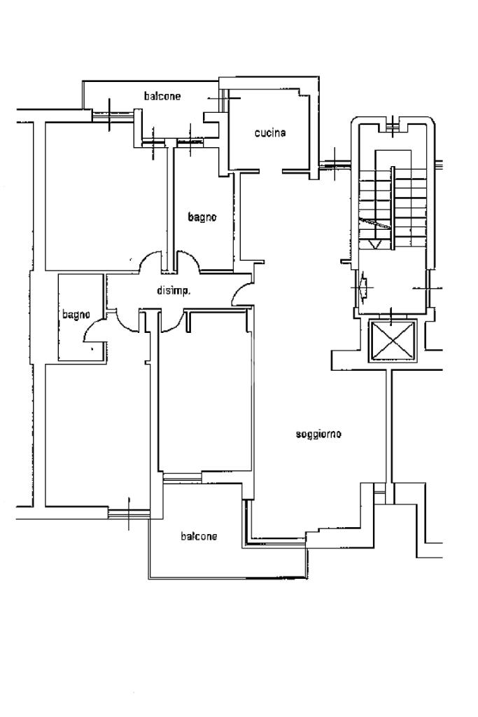
La soluzione si trova al secondo piano di una palazzina recentemente ristrutturata con il Super Bonus 110% ed è così composta: ampio ingresso, salone doppio con terrazzo abitabile adiacente, cucina abitabile con balcone di servizio adiacente, tre camere da letto tutte matrimoniali e delle quali due dotate di porta finestra con accesso ai terrazzi e doppi servizi.

Completano la proprietà una comoda cantina e un posto auto di proprietà esclusiva dotato di colonnina per ricarica elettrica. Sia cantina che posto auto sono collegati tramite ascensore.

La soluzione si presenta in ottimo stato interno e presenta infissi ristrutturati di ottima fattura in alluminio e doppio vetro, caldaia nuova, impianto idraulico ed elettrico ristrutturato, rivestimenti dei bagni ristrutturati, pavimenti interni lamati e lucidati.

L’appartamento è molto silenzioso e ciò è garantito dal fatto che i due affacci sono interni nel parco con la strada che rimane molo distante e da infissi e vetri di ultima generazione fonoassorbenti.

La posizione strategica dell'immobile, la vicinanza alla fermata Metro Laurentina, all’ospedale S. Eugenio, alle vie dello shopping e a tutti i principali servizi lo rendono estremamente confortevole per un uso residenziale.

La palazzina, grazie al superbonus, è stata interamente rinnovata nell'ottica del massimo efficientamento energetico, con il rifacimento delle facciate, l'installazione del cappotto termico e il consolidamento antisismico di tutte le colonne portanti del palazzo. Sono stati installati, inoltre, video citofoni, nuovo ascensore ed è stata ristrutturata l'autorimessa condominiale.

Mostra tutto

Nelle vicinanze

Trasporto pubblico Trasporto pubblico
Laurentina
Laurentina
940 m
EUR Fermi
EUR Fermi
1,4 Km
Pavese/Umanesimo
Pavese/Umanesimo
120 m
Laurentina/Umanesimo
Laurentina/Umanesimo
160 m
Ricariche auto elettriche Ricariche auto elettriche
Roma Sinigaglia | EnelX fast
280 m
Roma Silone | EnelX
600 m
Roma Ospedale S. Eugenio | EnelX
830 m
Eneldrive Douhet
880 m
Metro Laurentina | EnelX
990 m
Scuole Scuole
Scuole
120 m
Liceo Scientifico Statale Aristotele (succursale)
130 m
Liceo Aristotele
490 m
Scuola media statale C.Battisti
670 m
Liceo classico Francesco Vivona succursale
1,1 Km
Farmacia Farmacia
Farmacia Comunale Fonte Ostiense
790 m
Farmacia
850 m
Farmacia Vavalà
880 m
Farmacia Corsetti
950 m
Parafarmacia È Qui
1,8 Km
Ospedali Ospedali
Sant'eugenio
730 m
Studio Odontoiatrico Dominici
1,4 Km
Supermercati Supermercati
Carrefour Express
760 m
PAM
790 m
Iper Carni
840 m
Coop Via Laurentina
960 m
Carrefour
1,1 Km
Negozi Negozi
Friend's Alimentari
1,0 Km
OVS
1,3 Km
Brandy Melville
1,9 Km
Subdued
2,0 Km
Cantiere
2,0 Km
Bar Bar
Bar
430 m
Il tempio del caffè
800 m
E-42 Café
870 m
La tazzina stregata
950 m
EXE ROMA
1,8 Km
Ristoranti Ristoranti
Ristoranti
330 m
Wok Restaurant
770 m
LOFT Gastronomia E Grill
790 m
Specialità di Hong Kong
800 m
Le Vele
810 m
Mostra tutto

Caratteristiche

Rif.:
61152777
Piano:
2 con ascensore (Piano basso)
Posti auto:
1
Balconi:
2
Camere da letto:
3
Arredamento:
Assente
Mostra tutto
Prezzo Prezzo
€ 499.000
Rata mutuo Rata mutuo
€ 2.355 / mese
Proponi il tuo prezzoProponi il tuo prezzo

Classe Energetica

D
D
D
D
D
D
D
D
D
EP globale non rinnovabile:
175.00 kW h/m² anno
EP globale rinnovabile:
175.00 kW h/m² anno
EP invernale del fabbricato:
EP estiva del fabbricato:
Anno di costruzione:
1960
Riscaldamento:
Autonomo
Tipo impianto:
A radiatori
Tipo alimentazione:
Metano

Ti interessa visionare l'immobile?

Fissa un appuntamento  Fissa un appuntamento

Richiedi informazioni

Clicca su Leggi per aprire l'informativa
* Questi campi sono obbligatori

Calcola il tuo mutuo

Semplice e senza impegno
Anticipo

( % )
Mutuo

( % )

pochi semplici passi

inserisci i tuoi dati
Questionario completato
Grazie per aver richiesto un appuntamento senza impegno con un nostro Consulente del Credito e Assicurativo.

Hai inserito correttamente tutti i dati necessari e a breve riceverai una e-mail con un link da convalidare per inviare i tuoi dati.
Affiliato
Studio Eur 1 Srl
Viale dell'Aeronautica, 117 00144 Roma (RM)

Il nostro staff


  • Gianluca Morelli
    Affiliato

  • Stefano Morellini
    Responsabile

  • Claudia Lo Conte
    Coordinatrice

  • Francesca Marzano
    Collaboratrice
Viale dell'Aeronautica, 117 00144 Roma (RM)
Zona: Eur-Pavese-Dalmata
Mostra su mappa
Orari: dal lunedì al venerdì 09:00/13:00-15:30/20:00; sabato 09:00/13:00- 15:30/19:00; domenica su appuntamento dalle 10:00 alle 12:30.
Affiliato
Studio Eur 1 Srl
Viale dell'Aeronautica, 117 00144 Roma (RM)

2025 Tecnocasa Franchising S.p.A. - P. IVA 08365160152 - Via Monte Bianco 60/A 20089 Rozzano (MI). Ogni agenzia ha un proprio titolare ed è autonoma. Privacy policy | Policy utilizzo | Cookie policy