Quadrilocale in vendita

Roma, Via elio vittorini - Pavese
€ 539.000
4 locali 4 locali
135 Mq 135 Mq
2 bagni 2 bagni

Quadrilocale in vendita

Roma, Via elio vittorini - Pavese

Descrizione annuncio

NON IL SOLITO PRIMO PIANO

APPARTAMENTO IN OTTIMO STATO INTERNO CON TERRAZZI ABITABILI

E. U. R. - Via Elio Vittorini, in uno stabile con servizio di portineria, proponiamo la vendita di un appartamento pronto per essere abitato, sito al primo piano con duplice esposizione, EST – OVEST, che consente di avere luce all’interno della casa per tutto l’arco della giornata.

Nel valutare l’immobile vi chiediamo di andare oltre il fatto che si trovi ad un primo piano perché la duplice esposizione, la posizione rialzata della palazzina e della via stessa rispetto al terreno circostante conferiscono all’appartamento una vista, una spazialità ed una luminosità degni di appartamenti siti ai piani alti.


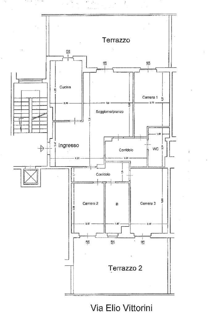
L'immobile è così composto: ampio ingresso, salone, cucina abitabile, ripostiglio, camera da letto patronale con ingresso indipendente rispetto alle altre due camere da letto, con bagno privato e ampi armadi a muro, due camere da letto, un secondo bagno e un ripostiglio.

Tutti i locali della casa ad esclusione dei bagni hanno accesso tramite porta finestra ai due ampi terrazzi.

La soluzione dispone anche di una cantina asciutta e di un comodo posto auto coperto di facile manovra.

Internamente ci sono impianti certificati, infissi di ultima generazione, aria condizionata canalizzata in tutto l’appartamento, grate di sicurezza e su ogni terrazzo vi è una pergotenda automatizzata che consente di vivere gli spazi esterni per gran parte dell’anno.


Riscaldamento autonomo e servizio di portineria.

Questo appartamento è la giusta soluzione per una famiglia che cerca una casa pronta per essere abitata in un contesto tranquillo e vicino ai servizi o per chi vuole fare un investimento, poiché vista la sua disposizione interna c'è la possibilità di ricavare due unità immobiliari distinte e separate.

Mostra tutto

Nelle vicinanze

Trasporto pubblico Trasporto pubblico
EUR Fermi
EUR Fermi
1,1 Km
Laurentina
Laurentina
1,3 Km
stazione di Tor di Valle
stazione di Tor di Valle
2,8 Km
Pavese/Ungaretti
Pavese/Ungaretti
200 m
Pavese/Vittorini
Pavese/Vittorini
230 m
Ricariche auto elettriche Ricariche auto elettriche
Roma Ospedale S. Eugenio | EnelX
410 m
EnelX EVA+ Roma Nervi
730 m
Roma Il Fungo | EnelX
920 m
Roma Sinigaglia | EnelX fast
950 m
Eneldrive Douhet
1,1 Km
Scuole Scuole
Liceo classico Francesco Vivona succursale
410 m
Scuole
570 m
Liceo Scientifico Statale Aristotele (succursale)
640 m
Liceo Aristotele
1,1 Km
Scuola Media Statale Leonardo da Vinci
1,3 Km
Farmacia Farmacia
Farmacia Comunale Fonte Ostiense
200 m
Farmacia Corsetti
930 m
Parafarmacia È Qui
1,0 Km
Farmacia
1,3 Km
Parafarmacia Farmacrimi
1,5 Km
Ospedali Ospedali
Sant'eugenio
310 m
Studio Odontoiatrico Dominici
1,9 Km
Istituto San Gallicano
2,6 Km
Istituti Fisioterapici Ospedalieri
2,6 Km
Supermercati Supermercati
Carrefour Express
210 m
Ipercoop
910 m
Carrefour
1,3 Km
Coop Via Laurentina
1,4 Km
Iper Carni
1,5 Km
Negozi Negozi
OVS
500 m
Friend's Alimentari
1,3 Km
Brandy Melville
1,5 Km
Subdued
1,6 Km
Sweet Baby Outlet
1,6 Km
Bar Bar
Il tempio del caffè
200 m
La tazzina stregata
240 m
E-42 Café
410 m
Bar
860 m
Federici Bruno
1,3 Km
Ristoranti Ristoranti
LOFT Gastronomia E Grill
30 m
Specialità di Hong Kong
40 m
Macinanti La Pizzeria
60 m
Il Fontanone
90 m
Wok Restaurant
250 m
Mostra tutto

Caratteristiche

Rif.:
61122311
Piano:
1 con ascensore (Piano basso)
Posti auto:
1
Terrazzi:
2
Camere da letto:
3
Condizionamento:
Autonomo
Mostra tutto
Prezzo Prezzo
€ 539.000
Rata mutuo Rata mutuo
€ 2.476 / mese
Proponi il tuo prezzoProponi il tuo prezzo

Classe Energetica

F
F
F
F
F
F
F
F
F
EP globale non rinnovabile:
175.00 kW h/m² anno
EP globale rinnovabile:
175.00 kW h/m² anno
EP invernale del fabbricato:
EP estiva del fabbricato:
Anno di costruzione:
1980
Riscaldamento:
Autonomo
Tipo impianto:
A radiatori
Tipo alimentazione:
Metano

Ti interessa visionare l'immobile?

Fissa un appuntamento  Fissa un appuntamento

Richiedi informazioni

* Questi campi sono obbligatori

Calcola il tuo mutuo

Semplice e senza impegno
Anticipo

( % )
Mutuo

( % )

pochi semplici passi

inserisci i tuoi dati
Questionario completato
Grazie per aver richiesto un appuntamento senza impegno con un nostro Consulente del Credito e Assicurativo.

Hai inserito correttamente tutti i dati necessari e a breve riceverai una e-mail con un link da convalidare per inviare i tuoi dati.
Affiliato
Studio Eur 1 Srl
Viale dell'Aeronautica, 117 00144 Roma (RM)

Il nostro staff


  • Gianluca Morelli
    Affiliato

  • Stefano Morellini
    Responsabile

  • Claudia Lo Conte
    Coordinatrice

  • Francesca Marzano
    Collaboratrice
Viale dell'Aeronautica, 117 00144 Roma (RM)
Zona: Eur-Pavese-Dalmata
Mostra su mappa
Orari: dal lunedì al venerdì 09:00/13:00-15:30/20:00; sabato 09:00/13:00- 15:30/19:00; domenica su appuntamento dalle 10:00 alle 12:30.
Affiliato
Studio Eur 1 Srl
Viale dell'Aeronautica, 117 00144 Roma (RM)

2025 Tecnocasa Franchising S.p.A. - P. IVA 08365160152 - Via Monte Bianco 60/A 20089 Rozzano (MI). Ogni agenzia ha un proprio titolare ed è autonoma. Privacy policy | Policy utilizzo | Cookie policy